Les Hauts de Loire
3 800 logements et 1 300 emplois envisagés
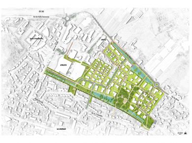
Le site des Hauts-de-Loire aux Ponts-de-Cé constitue une des dernières emprises foncières hors inondabilité sur l’agglomération Angevine. Il permet d’assurer une continuité urbaine et de proposer un rééquilibrage de l’offre résidentielle sur le secteur Sud de l’agglomération. Fruit d’une longue réflexion, le quartier continue à être imaginé, repris, réexaminé avant les premiers travaux qui interviendront fin 2023, début 2024.
UN PROJET D’AGGLOMÉRATION
Le projet d’aménagement des Hauts-de-Loire doit être replacé dans un contexte plus large que le seul territoire communal. En effet, ce site localisé au cœur de l’Agglomération Angevine, en continuité urbaine du quartier des Justices, à 4 km seulement du centre-ville d’Angers, forme un des derniers espaces de développement d’importance de la métropole. et de la ville des Ponts-de-Cé. En effet, après les aménagements des quartiers de la Monnaie et des Grandes Maisons, il représente une des dernières possibilités d’urbaniser la ville dont le territoire est inondable à plus de 75 %.
UNE GREFFE URBAINE À ASSURER AVEC LES AUTRES QUARTIERS
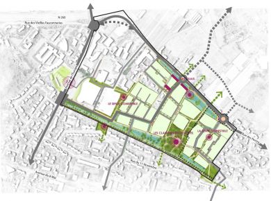
Inscrire un tel quartier dans le tissu urbain existant n’est pas chose aisée. En effet, le projet des Hauts-de-Loire ne doit pas être conçu comme un quartier autonome. C’est même l’ambition inverse qui est recherchée ici. Ainsi, le projet vient se connecter au quartier de La Chesnaie par la création d’une voie secondaire. Une connexion du même ordre est aussi envisagée avec le secteur du Grand Rivet. De nombreux liens sont aussi tissés avec les secteurs alentours avec la création de voies douces irriguant notamment le quartier du nord au sud. À noter enfin que le quartier offrira dans un premier temps peu d’espaces commerciaux afin de favoriser ceux des alentours (Centre Commercial de La Chesnaie et Centre Commercial de La Guillebotte) et ouvrir un peu plus le quartier sur les secteurs environnants.
UN PATRIMOINE VÉGÉTAL IMPORTANT
Avant les premiers aménagements, il a été recensé environ 600 arbres sur le site dont plus de 13 arbres de plus de 80 ans. Ce patrimoine végétal servira de support de la trame verte et des polarités de vie du quartier. Arbres d’alignement le long des allées piétonnes et des voies structurantes du secteur, ou arbres éparses, chacun trouvera sa place dans le futur aménagement. Dans la partie sud, une clairière récréative viendra renforcer le tissu végétal existant.
FAIRE DE CE QUARTIER UN QUARTIER MIXTE ET DURABLE
L’ambition affichée et partagée des deux collectivités, Angers Loire Métropole et Les Ponts-de-Cé est de faire de ce quartier, un morceau de ville capable d’accueillir à terme 3 800 logements environ dont 50 % à dominante collectif, 40 % d’îlot mixte et 10 % à dominante maison ainsi qu’un potentiel d’activités et équipements à définir. On y retrouve la volonté de créer un véritable quartier mixte durable dans tous ses aspects (sociale, générationnelle et fonctionnelle). L’enjeu est aussi d’adapter la programmation et le rythme d’aménagement aux besoins actuels et futurs. Ce quartier sera aménagé par phases successives, sur un temps long d’environ 30 ou 40 ans permettant l’accueil de nouveaux habitants dans le temps.

Les travaux de viabilisation sont lancés sur les Hauts-de-loire
08 octobre 2024

L'ilot A6, tête de proue du nouveau quartier
31 mai 2024

Les Hauts de Loire, la commercialisation de la première tranche dévoilée
30 mai 2024

Les Hauts de Loire, déconstruction, archéologues et premiers travaux
29 mai 2024

Les Hauts de Loire : Premiers travaux lancés
30 juin 2023

Les Hauts de Loire : La concertation appliquée au projet
29 juin 2023

Les Hauts de Loire : La transition écologique au coeur du projet
28 juin 2023

Les Hauts de Loire : Du déjà là aux polarités de vie
27 juin 2023

Les Hauts de Loire, un projet au coeur des enjeux communaux et métropolitains
26 juin 2023
Retour sur la réunion publique
14 novembre 2022

Réunion publique d'informations pour les Hauts de Loire
05 novembre 2022

Atelier convergence n°2, le projet des Hauts-de-Loire en exemple
21 juin 2022

L'IFEPSA s'agrandit
29 mai 2019

Un premier projet pour les Hauts de Loire
13 décembre 2018

Les Hauts de Loire opération à vocation communautaire
20 août 2018

La maison de retraite ne viendra pas aux Hauts de Loire
26 avril 2017

Déménagement des pépinières Lepage, nouvelle étape dans le dossier des Hauts de Loire
03 septembre 2015

Le dossier de réalisation des Hauts de Loire approuvé
15 octobre 2013

Les Hauts de Loire officiellement créés
30 janvier 2012
Liste des lots
Numéro | Prix TTC | Superficie terrain | Surface plancher maxi | Surface place PK couverte / garage | Surface imperméabilisation maxi | |||
---|---|---|---|---|---|---|---|---|
Il n'y a aucun lot disponible dans cette opération. |