La Moinerie
140 logements répartis en 50 % en accession et 50% pour le logement social (location et accession sociale à la propriété). Deux tranches sont prévues dont une première en 2019. La seconde est engagée depuis le printemps 2023
Un secteur situé en continuité de la zone urbanisée existante
Le secteur de la Moinerie est situé dans la partie Sud de la commune entre:
- le centre bourg ancien au Nord et ses extensions;
- le lotissement du chemin breton 1-2-3 à l’Ouest
- le Grand Chemin Breton à l’Est.
- et à proximité du chemin de la Moinerie au sud urbanisé de facon linéaire;
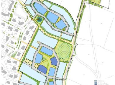
Le site de la ZAC présente des façades contrastées. Il jouxte à l’ouest le centre-bourg avec ses commerces et services (écoles, bibliothèque, pôle sportif, mairie…) et s’étend vers le sud et l’est sur des parcelles agricoles. Ce secteur bocager est marqué par la présence de haies arborées de belle qualité, de beaux arbres (essentiellement des chênes) isolés ou intégrés dans les haies et d’une mare au Nord-Ouest du site. Le site est traversé par un chemin creux bocager, reliant la rue des Carrières au Grand chemin Breton. Ce chemin est conservé dans le cadre de l’opération.
Un cadre naturel champêtre
Le site de la Moinerie bénéficie d’un patrimoine arboré donnant une ambiance champêtre composé de beaux sujets isolés dans les prairies, de haies linéaires denses issues de la trame bocagère et majoritairement composées de chênes et de pruniers. Afin d’assurer un aménagement de qualité en adéquation avec les potentialités du site et ses contraintes, des axes fondateurs du projet ont été mis en avant, à savoir:
- la necessité de respecter et de s’appuyer sur l’identité du site : trame bocagère et zones humides-franges baties,
- la volonté de poursuivre une urbanisation harmonieuse dans le prolongement de l’existant tout en évoluant vers des formes d’habitat plus denses et novatrices,
- la recherche d’une mixité et de diversité des formes urbaines et architecturales par la création d’îlots de vie: bâti avec une mixité de typologie d’habitat répondant aux besoins de tous.
Les îles habitées comme principe d’urbanisation
Le projet d'aménagement respecte la trame bocagère du site et créé un axe de structuration souple comme liaison végétalisée reliant les éléments du patrimoine arboré entre-eux. Les logements sont disposés en minimisant les impacts sur l’environnement physique et insérés dans le végétal en créant des «îles habitées».
Le Chemin Breton est préservé à l'Est du site comme axe de circulation partagé (auto en sens unique remontant vers le centre-bourg et piéton dans sa partie sud). Les haies sont préservées et viennent former l'ossature des iles habitées. Au coeur des îles habitées, de vastes espaces pubics centraux forment le coeur du site et profitent aux futurs habitants.
Aujourd’hui, le projet prévoit environ 140 logements répartis selon les formes urbaines suivants :
- 45% de logements individuels,
- 25% de logements individuels groupés,
- 30% de logements intermédiaires/collectifs.
Ces 140 logements sont aussi répartis en 50 % en accession et 50% pour le logement social (location et accession sociale à la propriété). Deux tranches sont prévues dont une première a été engagée en 2019.
Une première tranche aménagée
La première tranche se situe au Nord du nouveau quartier. Elle s’appuie sur le chemin creux bocager au sud et le chemin breton à l’Est.
La nouvelle voie créée part du chemin Breton, fait une boucle desservant les différents lots, forme une des îles habitées et rejoint la rue des Bosquets.
La mare existante est conservée et aménagée sur ces abords afin d’en faire un lieu de promenade et de vie.
Cette première tranche se compose donc de
- 22 terrains à bâtir
- 9 maisons groupées en accession sociale
- un îlot d'un quinzaine de logements locatifs
Les premiers travaux de viabilisation de cette tranche 1 ont commencé en 2019. Les 22 lots libres de constructeurs de 300 à 500 m² sont aujourd'hui livrés et habités. Il en est de même pour les 9 maisons groupées en accession sociale et le programme intermédaire
Visite de chantier d'Angers Loire Habitat
24 septembre 2025
Plantation participative à St Martin du Fouilloux
16 décembre 2024
La résidence Myrtil livrée, fin de la première tranche de la Moinerie
19 mars 2024
La moinerie prépare sa deuxième tranche
18 septembre 2023
Les élus à la rencontre des habitants
24 avril 2023
Le programme des demoiselles livré
18 juillet 2022
Chantiers en cours sur la ZAC de La Moinerie
06 décembre 2021
La Moinerie se remplit
06 janvier 2021
Fin de viabilisation et premières maisons en vue sur la Moinerie
26 février 2020
9 maisons vont être construites à St Martin du Fouilloux
18 novembre 2019
La Moinerie, c'est parti
24 avril 2019
Responsable de commercialisation
Laurence Philippe - 02 41 270 270
Liste des lots
| Numéro | Prix TTC | Superficie terrain | Surface plancher maxi | Surface place PK couverte / garage | Surface imperméabilisation maxi | |||
|---|---|---|---|---|---|---|---|---|
| Il n'y a aucun lot disponible dans cette opération. | ||||||||