Le Clos de la Pierre Couchée
Aménagement d'un nouveau quartier en frange urbaine
Le site
Le site, dit de la Pierre Couchée se positionne au sud de la ville, en frange de l’enveloppe urbaine, à l’intérieur de la délimitation fonctionnelle que représente la RD748.
Il couvre une superficie d’environ 3.1 hectares, délimité à l'Est par la rue des Treilles et le chemin de Saint Blaise plus au Nord, à l'Ouest par la rue Raphaël Lecuit, boulevard urbain nord-sud majeur à l’échelle communale, et rejoignant ainsi le centre de Quincé.
Au Nord, il est bordé par un tissu pavillonnaire dont l'accès se fait depuis la rue des Meuniers et qui tourne le dos aux terres agricoles et à l’entité viticole au Sud, desservit par un chemin d’exploitation est-ouest amorcé depuis la rue Raphaël Lecuit et dont la partie nord fait l’objet du projet de ZAC.
De par sa position, l’urbanisation de ce site revet un caractère particulier. Il s’agît ici à la fois de finaliser l’urbanisation pavillonnaire engagée sur ce quartier tout en traitant la notion d’entrée de ville sud.
Développer la frange urbaine
Le projet d’aménagement du site de la Pierre Couchée est né de la réflexion menée à l’occasion de l’élaboration du Plan Local d’Urbanisme de la commune en 2011. Afin de répondre aux besoins en logements sur la commune de Brissac Quincé, le projet d’urbanisme entend mobiliser des parcelles en dents creuses à raison de 2/3 de la production, mais également s’appuie sur un épaississement du bourg sur sa frange sud, correspondant à une légère extension.
Cette dernière se matérialise par deux sites identifiés de part et d’autre de la rue Raphael Lecuit, le clos de la Pierre Couchée en partie Est, le Clos saint Nicolas en partie Ouest. Inscrits en réserves foncières à vocation d’habitat, ils reflètent la volonté de la Collectivité d’appuyer le développement de la centralité de Quincé par l’accueil de populations nouvelles au cœur de son enveloppe urbaine.
Nouvelle épaisseur urbaine du bourg ouverte sur les terres agricoles, ce site représente un espace propice à la création d’une greffe sur la ville bénéficiant d’une large ouverture visuelle sur les terres viticoles au sud.
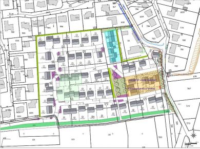
1- Une opération mêlant terrains à bâtir et logements intermédiaires
Engagées en 2013, les études ont permis de définir un périmètre de 3,1 hectares. Un dossier de création de ZAC a été réalisé et approuvé le 6 janvier 2014. Les premières acquisitions ont ensuite été menées. Les études se sont poursuivies et les procédures administratives ont été menées. Le programme de l’opération a alors été défini.
Il prévoit la réalisation de 67 logements à terme. Afin de respecter les objectifs des documents d’urbanisme et éviter de s’étendre plus en avant sur les terres agricoles, une mixité des formes urbaines et une diversité des modes d’habitat est recherchée. Différentes typologies de logements et diverses tailles de lots sont privilégiées.
Ainsi, les 64 logements sont répartis en :
- 12 logements en habitat intermédiaires par Maine-et-Loire Habitat
- 40 logements individuels libres sur des terrains à bâtir
- 15 logements individuels groupés répartis en deux programmes
La mixité sociale et l’accueil de toute catégorie de ménages est garantie par un ratio d’environ 20% de logements à caractère social à prévoir sur l’ensemble du programme.
2- Bien traiter la frange urbaine
Le site du Clos de la Pierre Couchée joue donc à la fois le rôle de densification résidentielle et le rôle de greffe urbaine sur le tissu pavillonnaire existant. Afin de garantir une bonne insertion urbaine, l’aménagement du site porte une attention particulière sur le traitement des franges avec les parcelles pavillonnaires limitrophes mais aussi avec l’espace agricole qui l’entoure.
La création d’une trame verte de protection mutuelle en frange sud entre l’intérieur du site et les terres viticoles constitue l’axe de composition et de structuration de l’opération. Sa décomposition en strates successives permettra l’intégration d’espaces paysagers accessibles comme lieu de loisirs. L’aménagement d’un square paysager permettra de proposer un lieu de promenade agréable, ainsi qu’un lieu de sociabilité au cœur du site. Par ailleurs, il comportera une fonction écologique (ilot de verdure) en s’ouvrant sur les espaces agricoles au sud au-delà de la voie secondaire. Il sera traité sous forme d’une large pelouse support de loisirs, complété de quelques jeux simples pour les grands (pétanque) ou pour les petits (simples jeux en bois).
Cet espace de protection permettra de gérer la transition et la cohabitation avec les vignes situées au sud. Servant de support de biodiversité, cet espace proposera un profil de largeur variable, traversé par une piste cyclable, et agrandie côté lots et ilots privatifs par une bande paysagère qui complètera la transition ente vignoble et habitation.
Cette liaison douce Est Ouest en site propre permettra des connexions vers le centre, le long des axes de la rue Raphaël Lecuit et de la rue des Treilles, en offrant des panoramas paysagers sur les campagnes situées au sud.
L’attention portée sur les limites se prolongera sur le traitement des clôtures et des plantations qui les accompagneront, afin de fournir un cadre cohérent à l’échelle du site évitant l’effet patchwork que produirait une succession de clôtures aussi diverses les unes que les autres.
3- Connecter le projet au reste du quartier
L’aménagement du site s’appuiera sur un maillage viaire lisible et sur la qualité des espaces publics tout en favorisant les relations au bourg de Quincé et aux pôles d’animation. L’organisation des déplacements au sein du site se fera autour d’un axe principal Est-Ouest qui reliera la rue Raphaël Lecuit à la rue des Treilles et d’un axe secondaire, raccordé au premier, offrant un deuxième point de connexion sur la rue des Treilles.
La hiérarchie du réseau viaire à l’intérieur de la ZAC facilitera la lisibilité du quartier tout en préservant la tranquillité des futurs habitants grâce aux principes de venelles et de liaisons douces vers le reste du territoire. Le confortement et la mise en place de plusieurs liaisons piétonnes transversales dans le sens Nord-sud ou Est-ouest facilitera l’appropriation des nouveaux espaces publics par le plus grand nombre (habitants alentours et futurs habitants), et cherchera à encourager les déplacements doux en direction des commerces, équipements et services du bourg.
4. La viabilisation lancée en février 2021
La viabilisation du site comprend la réalisation de l’ensemble des travaux de voirie, réseaux, bassins de rétentions, d’espaces vers et installations diverses à réaliser pour répondre aux besoins des futures entreprises à l’intérieur de l’opération.
Une première phase correspondant à la pose de l'ensemble des réseaux et d'une voirie provisoire a été engagée à l'hiver 2021. Une seconde phase interviendra après la réalisation des constructions et comprendra la pose des bordures et des candélabres, les revêtements définitifs des chaussées et des trottoirs, l’aménagement définitif des espaces verts.
Un quartier qui plait
18 mars 2026
Maine et Loire Habitat livre ses 12 logements locatifs
06 février 2024
Les premiers habitants arrivent sur le Clos de la Pierre Couchée à Brissac
28 août 2023
Début de chantier pour le programme de Maine-et-Loire Habitat
24 mai 2022
Top départ pour le Clos de la Pierre Couchée
23 février 2021
Responsable de commercialisation
Laurence PHILIPPE - 02 41 270 270
Liste des lots
| Numéro | Prix TTC | Superficie terrain | Surface plancher maxi | Surface place PK couverte / garage | Surface imperméabilisation maxi | |||
|---|---|---|---|---|---|---|---|---|
| Il n'y a aucun lot disponible dans cette opération. | ||||||||