ZAC du Grand Clos
LE SITE
Le site, dit du Grand Clos se positionne au sud du centre-bourg, en frange de l’enveloppe urbaine, dans le prolongement du centre-bourg.
Il couvre une superficie d’environ 7,6 hectares, délimité au Nord par la rue Armand Brousse, à l'Est par la rue René Thareau, au sud par le Chemin Noir, en retrait des terres viticoles et à l’Ouest par la route du Grand Clos.
Le site du projet est directement structuré par trois éléments naturels :
- Un relief en pente continue et douce depuis le sud-ouest en direction de deux points bas (vers le nord, vers le sud-est). Ce relief crée une position de surplomb de la partie sud du site sur le bâti enchevêtré du bourg ancien, et sur le clocher de l’église ;
- Des relations directes avec la richesse du paysage viticole et bocager en remontant le coteau : bosquets à l’ouest, parcelles viticoles au sud-ouest, prairie bocagère au sud-est ;
- Une végétation pauvre sur le site en lui-même, excepté la présence de quelques arbres isolés dont un cèdre remarquable et un if à proximité du bourg. Les limites urbaines du site s’appuient sur des haies arbustives, et ponctuellement sur des jardins arborés et sur des murs de clôture (mur de schiste et mur de parpaing non enduit).
De par sa position, l’urbanisation de ce site revêt un caractère particulier. Il s’agît ici de traiter la notion d’entrée de ville sud.
Dans une démarche à la fois volontaire et concertée, la municipalité entend rompre avec le développement urbain extensif qu’elle a connu ces dernières décennies, par la colonisation pavillonnaire standardisée des hameaux. Dès lors, le développement en accroche directe sur le bourg devient une priorité. L’idée de greffe urbaine, architecturale et paysagère entre le bourg ancien, le lotissement des Noues Blanches et le paysage agricole alentour devient l’idée force du projet. Le pavillon unifamilial ne doit donc plus constituer l’unique typologie de logement.
Si, le développement urbain attendu doit être principalement résidentiel, l’accueil d’une nouvelle population constitue un impératif pour la commune. Il doit s’effectuer en réponse à deux besoins démographiques et résidentiels interdépendants :
- De nouveaux arrivants, et notamment des jeunes ménages, qui viendront freiner le vieillissement structurel de la population ;
- Une diversification du parc de logements apte à répondre aux enjeux de mixité générationnelle, sociale et urbaine.
DEVELOPPER LA VILLE POUR RENFORCER SON COEUR
Le site est amené à répondre à ces besoins. De par sa superficie d’environ 7,6 hectares, il représentera pour la collectivité le principal foncier pour assurer le développement résidentiel de la commune des prochaines années. Pour la municipalité, face à une pression périurbaine qui reste forte sur le territoire, la démarche d’un projet d’ensemble s’est imposée, et ce pour trois raisons :
- Contrer le mitage des paysages,
- Maîtriser le rythme et la diversité de production de logements,
- Intégrer les contraintes des réseaux et de gestion des risques en bonne coordination avec les politiques locales.
Le projet s’appuie sur les cinq principes suivants :
- La perméabilité du futur quartier
- La prise en compte du développement durable
- La gestion des limites et des perspectives
- La mixité fonctionnelle de la partie nord du quartier pour renforcer la centralité du bourg
- La gestion des implantations bâties dans une logique de greffe sur le bourg ancien
Plusieurs phases d’aménagement pour assurer un développement régulier
Le quartier du Grand Clos comporte un programme de logements d’une capacité d’environ 144 nouveaux logements, complété par un potentiel d’accueil de services/commerces, au niveau de l’espace de centralité en accroche sur la rue A. Brousse, nécessitant des études complémentaires permettant de confirmer ce potentiel.
La programmation des logements est répartie comme suit :
- 26% de logements collectifs et intermédiaires
- 23% de logements groupés
- 51% de logements individuels purs
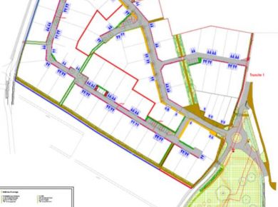
Afin de réguler le marché du logement en lien avec les capacités d’accueil des équipements publics et services, il est envisagé plusieurs tranches d’aménagements. La première est située au sud-est de l’opération ; elle comprend la réalisation des éléments suivants :
- Le bassin de rétention sud
- Le transformateur électrique qui servira à l’ensemble de l’opération
- Le giratoire sur la route du Grand Clos (RD 127)
- Une partie de la voie principale de l’opération
- Une voie secondaire et une voie tertiaire en impasse
- Une partie de la coulée verte de l’opération (axe vers l’église)
Connecter le projet au centre-bourg
Deux places de centralité que prolonge une coulée verte à l’intérieur de l’opération seront aménagées dans le cadre de l’opération. Au sud-est, un autre espace paysager sera réservé pour gérer une partie des eaux pluviales du projet. Le réseau de circulation aura une vocation de desserte interne à l’opération, à l’exception de la trame de cheminements doux qui s’intègrera dans les cheminements piétons existants du bourg et de ses franges.
Les deux entrées sud du bourg (route du Grand Clos et rue R. Thareau) seront qualifiées, avec au niveau de la route du Grand Clos l’aménagement d’un carrefour marquant l’entrée de bourg. L’espace paysager au sud-est en lien avec la gestion des eaux pluviales participera à la mise en valeur de cette entrée.
La viabilisation de la tranche 1 en voie d'achèvement
La viabilisation du site comprend la réalisation de l’ensemble des travaux de voirie, réseaux, bassins de rétentions, d’espaces verts et installations diverses à réaliser pour répondre aux besoins des futures entreprises à l’intérieur de l’opération. Une première phase correspondant à la pose de l'ensemble des réseaux et d'une voirie provisoire a été engagée au printemps 2021. Une seconde phase interviendra après la réalisation des constructions et comprendra la pose des bordures et des candélabres, les revêtements définitifs des chaussées et des trottoirs, l’aménagement définitif des espaces verts. Les Architectes des Bâtiments de France ont été partie prenante dans l’élaboration du projet.
De même, les services du Département de Maine-et-Loire ont également été associés au projet dans le cadre de la création d’un giratoire sur la RD 127, dite Route du Grand Clos.
Cette première tranche de 35 logements dont 25 logements individuels libres de constructeurs et 10 logements individuels groupés dont 5 locatifs et 6 en accession à prix maitrisé est aujourd'hui finalisée.
Une deuxième tranche en cours de commercialisation
Après le succès de la première tranche du secteur du Grand Clos, à Saint-Melaine-sur-Aubance, Alter et la commune ont lancé au printemps 2025 la commercialisation de la deuxième phase de ce projet d’aménagement. Elle propose de nouvelles opportunités de logements avec 28 nouveaux terrains à bâtir. De 301 à 681 m², ces terrains sont disponibles à partir de 46 655 €.
MELDOMYS remet les clés de 5 logements à Saint Melaine-sur-Aubance
13 mai 2026
Le Grand Clos à Saint-Melaine-sur-Aubance : la deuxième tranche en commercialisation
19 août 2025
Les premières maisons sortent de terre sur la ZAC du Grand Clos
28 août 2023
La zac du grand clos sur de bons rails
28 septembre 2022
Fin de chantier et commercialisation engagée pour la ZAC du Grand Clos
27 juillet 2022
ZAC du Grand Clos, C'est parti
15 avril 2021
Responsable de commercialisation
Laurence PHILIPPE - 02 41 270 270
Liste des lots
| Numéro | Prix TTC | Superficie terrain | Surface plancher maxi | Surface place PK couverte / garage | Surface imperméabilisation maxi | |||
|---|---|---|---|---|---|---|---|---|
| Il n'y a aucun lot disponible dans cette opération. | ||||||||