Deux quartiers attractifs, pour habiter Montreuil-Bellay
70 logements
Opération avec Terrains à Bâtir
Dans le cadre de sa politique de développement urbain, la Ville a d’abord engagé l’aménagement du quartier des Plantes. Aujourd’hui, après une phase de concertation et l’approbation, en septembre dernier, de son dossier de réalisation, c’est l’aménagement de la ZAC des Coteaux du Thouët qui vient renforcer l’offre pour habiter à Montreuil-Bellay.
Prochainement, un nouveau quartier « Les Coteaux du Thouet »
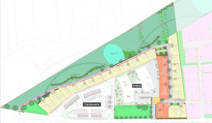
Situé en entrée Nord de la Ville, en frange de l’urbanisation existante, le site bénéficie d’une accessibilité aisée, à proximité de la route de Saumur. Le quartier des Coteaux du Thouet accueillera à terme près de 70 logements sur une surface de 8,5 ha, juste à proximité de l’EHPAD actuellement en cours de construction et la gendarmerie. Ce nouveau quartier, qui a vocation à asseoir la relance démographique de la Ville, s’inscrit en cohérence avec le SCOT et le PLUi. Le programme de constructions et le parti d’aménagement ont été élaborés afin de prendre en compte la sensibilité écologique du site, ainsi que l’insertion urbaine dans le grand paysage. Une frange paysagère sera aménagée afin d’isoler visuellement et phoniquement le futur quartier de la route départementale. Des perméabilités permettront de préserver des perspectives vers le Châteaux et le centre-ville historique. L’aménagement paysager sera propice à la reconstitution des habitats faunistiques et la préservation de la flore. Sur le plan urbain, le quartier s’intégrera dans la continuité du tissu bâti existant. Des liaisons douces viendront irriguer l’ensemble du quartier.
Une première phase de travaux a été engagée fin 2022, afin de permettre le démarrage du chantier de l’EHPAD. Une nouvelle phase de travaux est programmée d’ici la fin de l’année 2023.
