Les Périnières
23 terrains à bâtir
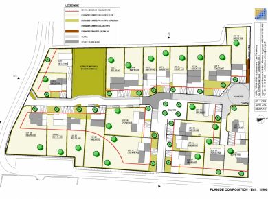
Le projet
Le projet des Périnières se situe rue Fontaine au Gué, sur la commune de Neuillé. En limite du centre bourg, le quartier s'inscrit dans un ensemble urbain évolutif.
Structuré autour d'un axe Nord/Sud traversant le site de part en part, le projet se compose en un hameau autour d'une placette, d'un bassin paysager et forme une entrée urbaine en diffus.
Compte tenu de sa proximité immédiate avec le centre historique du bourg et les zones habitées, la municipalité a souhaité que ce secteur puisse accueillir principalement des habitations dont les formes et les implantations constitueront la continuité de la trame urbaine de la commune. Pour marquer cette cohérence avec l’urbanisation ancienne, une certaine densité de constructions et des aménagements ont été envisagés.
Ainsi, il est prévu la réalisation de 23 terrains à bâtir sur des parcelles homogène de 400 à 600 m². Seules trois parcelles de plus de 700 m² sont proposées.
Responsable de commercialisation
Nathalie BEIGNET - 02 41 40 04 12
Liste des lots
Numéro | Prix TTC | Superficie terrain | Surface plancher maxi | Surface place PK couverte / garage | Surface imperméabilisation maxi |
---|---|---|---|---|---|
04 | 33 152,00 € | 518 m² | -- | -- | -- |
15 | 29 888,00 € | 465 m² | -- | -- | -- |